Sjövretsvägen 55 Rönninge - Vid Uttran
Rönninge - Vid Uttran

Sjövretsvägen 55

220 m² 4 106 m² 113 m² 6 rum och kök 2006 13 600 000 kr/bud
Önskar du en visning? Vänligen fyll i dina kontaktuppgifter så återkommer jag. Intresseanmälan

Vacker platsbyggd villa med sjöutsikt - Energiklass A - Ypperligt skick!

Vacker familjevilla med sjöutsikt i mysig lantlig miljö, med en känsla av "Exklusiv Bullerby", nära stan! Villan stod klar 2006 på stor tomt (4 106 kvm), högt och privat belägen i lugnt och lummigt äldre område och med utsikt mot sjön Uttran. Huset har en totalarea om ca 330 kvm (boa + bia) och är i ypperligt skick och inredd med färgval som skapar harmoni och påkostat materialval samt är uppförd på plats med omsorg för att passa in i den äldre bebyggelsen.

Enastående sällskapsutrymmen med härlig rymd i entréplanets öppna planlösning med glasveranda, stort kök med köksö och vardagsrum med modern kakelugn (Sandugn från Långholmen). Fyra sovrum varav ett med separat ingång, ett badrum, två duschrum samt bastu, gästtoalett, walk-in skafferi, groventré samt mycket stora förrådsutrymmen. Härligt trädäck i söder mot sjösidan som har sol i stort sett hela dagen och direktaccess från vardagsrum samt gott om plats för sittgrupp. Ytterligare fin och skyddad uteplats vid garaget. Stor uppfart med plats för parkeringar. Rymligt varmgarage som skapar en fin gårdsbild med huset samt en hundgård med hundkoja vidbyggt till garaget på baksidan. På den generösa och lummiga tomten finns en mix av bl.a. gräsytor, vackra perennrabatter, buskar och träd samt fint inramad av häck och staket.

Sjövretsvägen är en unik miljö längs med sjön Uttran som under sommartid är en vacker badsjö och erbjuder vintertid möjlighet till bl.a. skridskoåkning. På nära gångavstånd finns badbrygga på allmänning. Gång-/cykelavstånd till Rönninge centrum och pendeltåg.

Hela fastigheten ger en skön känsla av stilfullt boende på en rofylld grönskande plats, endast ca 30 min med bil till Stockholm och 15 min till Södertälje!

Planritning

Planlösning för Sjövretsvägen 55
Planlösning för Sjövretsvägen 55
Planlösning för Sjövretsvägen 55

Bilder

Sjövretsvägen 55
Sjövretsvägen 55
Sjövretsvägen 55
Sjövretsvägen 55
Sjövretsvägen 55
Visa alla bilder
1½-plansvilla med hel källare
2006
Stående träpanel ö-plan och liggande på entréplan
Trä
3-glas, energiglas (krypton), U-värde 1,2.
Lertegel (Vittinge) samt falsad plåt
Trä
Källare
Betongplatta. Hel källare av lecablock.
Vattenburen Bergvärme, golvvärme i hela byggnaden samt kakelugn
Förutom huvudbyggnaden finns det ett varmgarage och en hundgård på fastigheten.

Det rymliga garaget, om ca 45 kvm, är isolerat och har gjuten platta med vattenburen golvvärme (kulvert till bergvärmepumpen i huset), v/a och el. Byggt 2004-2005. Garaget är också utrustat med 3 fas-uttag, elbilsladdare 11 kW (Easee), väggfasta hyllor, snickarbänk och redskapshållare samt ett extra kylskåp (Electrolux). Ovanför garaget finns ett vindsförråd med access utifrån.

Vidbyggt till varmgaraget finns en hundgård om ca 19 m2 med isolerad och uppvärmd hundkoja.
Genomförda åtgärder och renoveringar:
2015 - Kanalrengöring av FTX-system.
2016 - Byte av motor till centraldammsugare.
2017 - Byte av fläktmotorer i FTX-systemet.
2018 - Målning av fasad och fönsterfoder, hus + garage. Bättringsmålning av fönster, södersida. Byte av vattbrädor, hus + garage.
2019 - Målning av tak och väggar, sovrum i sydväst
2021 - Nytt trädäck, terrass. Ny trapp till grovingång.
2022 - Byte av expansionskärl, värmesystem.
2022 - Energideklaration utförd
2023 - Brandskyddskontroll 2023-09-12.
2023 - Målning av hus- och garagesockel, målning av entrédörrar utsida, målning snickerier i huvudentré.
2024 - Målning av entrégrind.
2024 - Golvslipning och lackering av ekgolv, entréplan.
2024 - Tapetsering av kök. Målning av tak och väggar, entréplan. Tapetsering av gästtoalett.
2025 - Köksön installerades, Lundins kök. Bänkskiva, Borghamns kalksten. Vinkyl - Miele.
2025 - Installation av ny bergvärmepump, IVT Geo 612E.
2025 - Radonmätning
2025 - Förhandsbesiktning.
6 rum, varav 4 sovrum
220 m² (Faktisk uppmätning, SS 21054:2020). Enligt taxering är boa 217 kvm och bia 110 kvm.
113 m² (Faktisk uppmätning, SS 21054:2020)
13 600 000 kr/bud
4 106 m²
Friköpt
38 kWh/kvm/år. Energiklass A
Kommunalt vatten och avlopp via gemensamhetsanläggning, Salem Uttringe GA:12året om.
FTX-system, filterbyte en gång om året
Servitut, GA, Samfälligheter etc: Gemensamhetsanläggning: Salem uttringe ga:11 ändamål: Vägar, Elledning och/eller belysning
Gemensamhetsanläggning: Salem uttringe ga:12 ändamål: Vattenförsörjning, Avloppsanläggning
Avtalsservitut Kraftledning
Last: Avtalsservitut Kraftledning, 01-IM7-48/3637.1

Planbestämmelser: Detaljplan (1999-06-17)
På den generösa och lummiga tomten finns en mix av bl.a. gräsytor, vackra perennrabatter, buskar och träd samt är fint inramad av häckar och staket, som håller hundar inne och rådjuren ute. Välkomnande grusad uppfart, med plats för parkering som leder fram till garaget och vidare till en uteplats i morgonsol mellan garaget och huset samt en gång fram till husets entré. Detta område är stenlagt med grå Ölandssten och allt fint omgärdat av planteringar.

Hela trädgården är omsorgsfullt planerad och underhållen. Här finns rosor, rhododendron, hortensia, två äppelträd, två magnolior, mullbärsträd, buxbom, lavendel, häck av bukettapel och syren samt flera japanska lönnar.

Trädgården är fint ljussatt med två sensorstyrda utelampor på stolpe, elva utelampor på hus och garage, varav vissa är sensorstyrda, samt två sensorstyrda spottar på garage. Vidare finns ett vattenutkast samt eluttag på altanen och på utsidan av garaget.

Den bakre delen av tomten består av ett litet skogsparti med orörd skog (hassel, ek, björk och tall) på en höjd, varifrån man har en enastående utsikt över sjön Uttran!
Summa driftkostnad: 55 189 kr/år. Driftkostnaden fördelas enligt följande:
El: 23 310 kr
V/A: 8 000 kr
Väg-/Samfällighetsavgift: 8 000 kr
Renhållning: 3 379 kr
Försäkring: 11 000 kr
Övrigt: 1 500 kr
Elförbrukning: 10 500 kWh/år
I Kostnaden för el ingår värme och hushållsel och är beräknad på schablonen på 2,22 kr/kWh (10 500 kWh/år). Kostnaden för försäkring är inkl. hemförsäkring. Kommunalt v/a via gemensamhetsanläggning. Övrigt är filterbyte för FTX-systemet. Tillkommer kostnad för fastighetsavgift samt underhållskostnader. Notera att driftkostnaderna är ägarens faktiska kostnader, vilka givetvis varierar beroende på familjestorlek och förbrukning. Nuvarande ägare är en familj på två vuxna personer och två tonåringar.
220, Småhusenhet, bebyggd
Taxeringsvärdet är 7 554 000 kr varav byggnadsvärde 4 882 000 kr, mark 2 672 000 kr. Värdeår: 2006.
5 st om totalt 5 010 000 kr.

Stilren och modern familjevilla, byggd 2006, med äldre charm samt belägen i fint söderläge med sjöutsikt! Husets ca 220 kvm i boa och 113 kvm i bia erbjuder en mycket trivsam och väldisponerad planlösning. Fint inramad trädgård med sol i stort sett hela dagen. Badbrygga på nära gångavstånd och i närområdet finns härliga grönområden och skolor (F-9).

Entréplan:
Entré via en vacker veranda under tak till en luftig och välkomnande hall med bra plats för möbel och upphängning av ytterkläder. Från hallen är det ingång till en gästtoalett med fönster mot entrésidan. Vidare från hallen nås trappen till de två andra våningsplanen och entréplanet öppnar upp sig med rymliga sällskapsytor. Hela entréplanet har en härlig takhöjd på ca 2,70 m.

Den stora sällskapsdelen, ca 55 kvm, består av vardagsrum och matrum i burspråk/glasveranda i öppen planlösning med en uppmurad tegelvägg och en vacker kakelugn (modern sandugn) centrerad i rummet. Hela rummet har ett otroligt ljusinsläpp från fönster och altandörr. Det vackra burspråket i söder har höga fönster och utsikt mot trädäcket och sjön. Vardagsrummet har fönster i syd/väst och vackra altandörrar ut till altandäcket i söder. Fullt utrustat kök med snickerier från Lundins kök med en stilren köksö i centrum. Gott om förvaring och arbetsytor. Fönster ovan diskho släpper in ett fint ljus, diskmaskin i bänkhöjd, extra bred spishäll, vinkyl samt ett rymligt walk-in skafferi. Innanför köket finns en groventré med fönster och ingång från trädgården. Gott om arbetsytor, tvättho samt förvaringsskåp.

Övre plan:
Det stora ljusa allrummet på det övre planet nås via öppen trapp från sällskapsrummet. Allrummet har en fönstervägg i söder och vacker utsikt mot sjön. Tre sovrum, två lika stora rum på den västra gaveln om allrummet och ett Masterbedroom mot öster. Alla tre rum med ett större fönster och ett mindre, vilket skapar fint ljusinsläpp. Stort och stilfullt helkaklat badrum med duschplats, badkar, dubbla handfat i kommod, förvaringsskåp samt wc. Badrummet har ingång både från Masterbedroom samt från del av allrummet som fungerar som en övre hall och ligger åt husets bakre del. Här finns också en hel garderobsvägg. Övre plan har en takhöjd på ca 2,50 m.

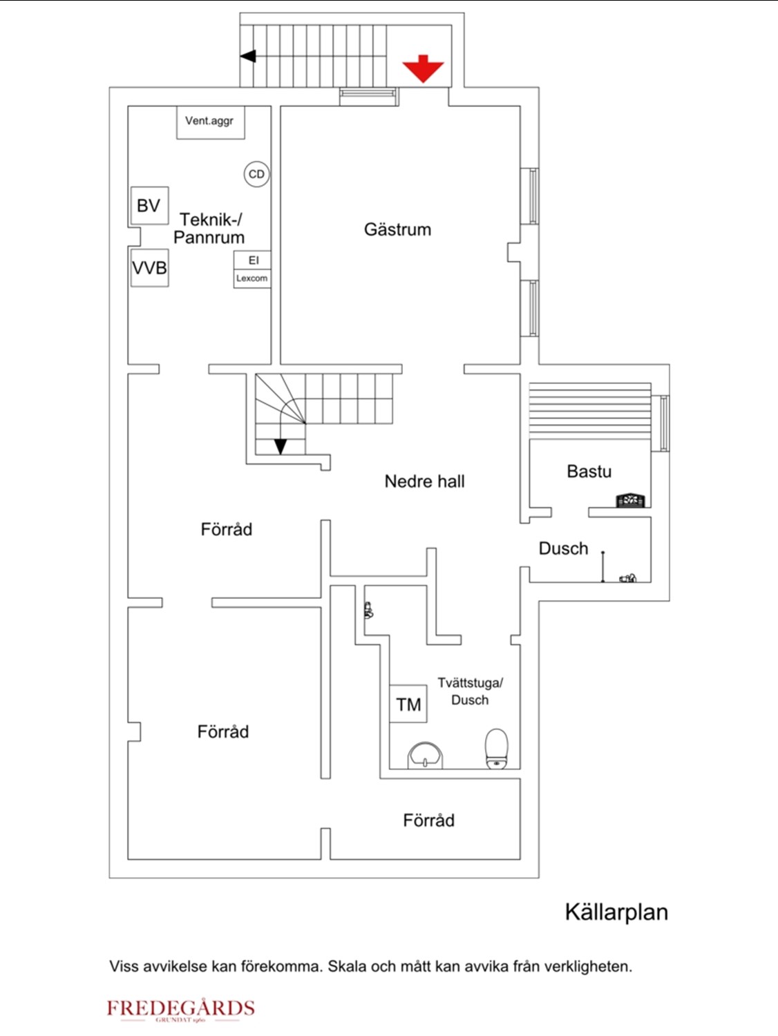
Källarplan:
Via den öppna trappen från sällskapsrummet nås även källaren som leder ner till en nedre hall som idag fungerar som ett arbetsrum och övriga utrymmen nås från detta rum. Mot öster finns ett stort gästrum med egen ingång med access via en yttre trapp från trädgården/infarten. Vidare från hallen finns ett helkaklat duschrum och rymlig bastu med fönster och glasdörr, ytterligare ett duschrum med wc och plats för tvättmaskin etc. Pannrum/teknikrum med bergvärmepump, FTX-system, centraldammsugare, elcentral, bredband, lexcom-system samt mycket stora förrådsutrymmen. Dessa utrymmen ligger i den bakre delen av källaren och nås från den nedre hallen. Källarplan har en takhöjd på ca 2,40 m.

Ytskikt och materialval:
Golv i rummen:
Mattlackad massiv ek-tilja i kök och i hela sällskapsdelen på entréplanet samt oljad massiv ek-tilja i rummen på övre plan. Portugisisk kalksten i entréhallen och vid kakelugnen (sandugnen) samt klinker i grovingången.
I gäst- och arbetsrum på källarplan är det kalksten.

Kök:
Köksinredning i vitt från Lundins Kök, modell Tradition. Köksbänkar av Borghamns kalksten.
Kyl, frys, ugn och diskmaskin från Siemens. Induktionshäll från Bosch. Mikro från Whirlpool.
Walk-in skafferiet är utrustad med väggfasta hyllor.

Våtutrymmen:
Gästtoaletten på entréplan och badrummet på övre plan har sjösten på golv och kalksten på väggar. Porslin från Duravit och blandare, Hans Grohe.
Duschrum, wc och tvättstuga på källarplanet har golv av sjösten och väggar av kakel. Porslin från Duravit, blandare, Hans Grohe, samt tvättmaskin från Miele.
Duschrummet vid bastun har sjösten på golv och väggar av kalksten.
Bastun har sjösten på golv och Tylö bastuaggregat (el)

Övrigt materialval:
Huset är i lösvirke och konstruerat av KA Byggteknik och uppfört av Nife Entreprenad AB.
Råspont i samtliga innerväggar.
Ytterdörrar och innerdörrar på entré och övre plan är snickeritillverkade hos RM Snickerier AB, Vimmerby.
3-glasfönstren är energiglas (krypton) med U-värde 1,2, från Vinäs kulturfönster.
Samtliga fönsterbänkar av Borghamns kalksten.
Trappor av massiv ek, Rättviks trappfabrik.
Kakelugnen är en Sandugn från Stockholm kakelugnsmakeri, Långholmen.
Bergvärmepump, IVT Geo 612E, från 2025.

Övrigt:
Genomgående vattenburen golvvärme på alla tre våningsplanen.
Fastigheten är ansluten till fiber och indraget i huvudbyggnaden (pannrum/teknikrum).
Lexcom-system (trådbundet nätverkssystem med uttag för tele och data i varje rum)
Centraldammsugare med uttag på entréplan och övre plan. Slangen når alla bostadsytor i källarplan.
Vindsförråd med lucka med stege från allrummet övre plan.

Sjövretsvägen är en unik miljö längs med sjön Uttran. Med äldre trähus från sekelskiftet (1900) blandat med ett antal nyare hus, alla byggda med omsorg att passa in i befintlig bebyggelse. Uttran är sommartid en vacker badsjö och erbjuder vintertid möjlighet till bl a skridskoåkning. På nära gångavstånd finns badbrygga på allmänning.

Gång-/cykelavstånd till Rönninge centrum och pendeltåg mot Stockholm och Södertälje samt bussar.

Intresseanmälan

Dina uppgifter förblir konfidentiella och stannar hos oss.