Holgattu 25 Tällberg
Tällberg

Holgattu 25

218 m² 5 902 m² 5 rum och kök 2000 12 250 000 kr/bud
Önskar du en visning? Vänligen fyll i dina kontaktuppgifter så återkommer jag. Intresseanmälan

Vackert arkitektritat hus - Högt beläget i byn - Sagolik utsikt

Nu finns möjlighet att förvärva en mycket fin fastighet i hjärtat av Dalarna med utsikt över Siljan!

Fastigheten har ett av Tällbergs absolut bästa lägen. Den är högt belägen med vackra vyer i flera väderstreck. Det arkitektritade huset i två plan har öppen planlösning och alla moderna bekvämligheter kombinerat med snickarglädje i detaljer. Huset är placerat en bit från vägen på en härligt stor trädgårdstomt. Trots det centrala läget i byn upplever man en lugn miljö. Med fantastiska ljusinsläpp och extra takhöjd på ovanvåningen har man överallt fina vyer och en känsla av att befinna sig bland trädkronorna. Här kan man njuta av fantastiska solnedgångar och skåda spektakulära väder över nejden. Efter några minuters promenad når man såväl vackra naturreservat som Tällbergs fina hotell med högklassiga restauranger och spaanläggningar. Från huset ser man den unika gammelgården i Tällberg ett stenkast bort.

Huset har många omsorgsfullt designade detaljer såväl in- som utvändigt vilket ger en fin estetik och en känsla av gårdsromantik, trots att huset är modernt. Till känslan av ”Dalagård” bidrar gärdesgården runt hela tomten, det stora timrade dubbelgaraget med förråd och en timrad vedbod, båda med fina blyinfattade fönster. Huset är färdigställt 2001 och med en påkostad design och funktion. Det är i mycket gott skick efter löpande renoveringar och dessutom har kvalitetsnivån höjts ytterligare genom flera investeringar såväl ute som inne.

Huset har tre murade eldstäder, inklusive en vedspis i köket som ger mysig atmosfär. Det stora lantköket och spatiösa rum för umgänge kombineras med bra förvaringsutrymmen och rymlig tvättstuga. Huset rymmer tre sovrum.

Den stora omsorgsfullt planerade tomten har en lika vacker som lättskött trädgård. Den erbjuder fina uteplatser såväl i norr som söder som därmed alltid kan erbjuda antingen sol eller skugga beroende på tid på dagen/kvällen. Den stora tomten ger möjlighet till ytterligare byggnation av olika slag för den som så önskar. Trädgården är anlagd så att vackra rabatter kan skötas med minimalt arbete. Med robotgräsklippare, smarta val av växter och stenlagda gångar och rabattkanter krävs mycket mindre skötsel än förväntat. Huset kan med andra ord fungera som permanent- likväl som fritidsboende.De bevarade ståtliga björkarna i blickfånget bidrar till den visuella charmen. En unik fastighet som bör upplevas på plats!

Vänligen kontakta Monica Cederberg, 070-295 20 75. Visning kan ordnas med kort varsel.

Planritning

Planlösning för Holgattu 25
Planlösning för Holgattu 25
Planlösning för Holgattu 25
Planlösning för Holgattu 25
Fastighetskarta

Bilder

Holgattu 25
Holgattu 25
Holgattu 25
Holgattu 25
Holgattu 25
Visa alla bilder
2-plansvilla
2000
Stående träpanel
Trä
2-glas isoler +1, kopplade fönster med äkta spröjs
Tegel
Trä
Isolerad krypgrund
Bergvärme med tillsatsel vid behov. Vattenburen golvvärme på båda våningsplanen.
Hus 2 - Fristående isolerat dubbelgarage med förrådsdel om ca 85 kvm, utrustat med el/eluppvärmning, v/a och garageskjutportar. Via förrådet nås ett vindsloft med möjlighet till viss förvaring.

Hus 3 - Vedbod om ca 10 kvm, utrustat med el.
5 rum, varav 3 sovrum
218 m² (taxeringsinformation)
12 250 000 kr/bud
5 902 m²
Friköpt
56 kWh/kvm/år. Energiklass B
Kommunalt vatten och avlopp året om.
Mekanisk frånluftsventilation, justerbara fönsterventiler i flera av fönstren
Servitut, GA, Samfälligheter etc: Förmån: Officialservitut Väg, 20-LEJ-3332.1
Last: Avtalsservitut Optokabel, D201900143220:1.1
Last: Ledningsrätt Vatten och avlopp, 2029-3164.1
LEKSAND TÄLLBERG GA:30 (Vägar). Akt 2029-2022/33.7

Planbestämmelser: Byggnadsplan (1974-12-06)
Lätt sluttande trädgårdstomt
Fastigheten har en 5 902 kvm stor, något sluttande trädgård med sol från morgon till sen kväll. Högt belägen med utsikt över Tällberg och Siljan och med bergen i fonden.

Stor uppfart med gårdssingel och parkering för minst ett par bilar i vändzon. Stenlagda gångar, flertalet rabatter med buskar och perenner samt stora gräsytor avbrutna av tre ”hagar” med äng och björk. Det finns även flera pallkragar, fruktträd och vinbärsbuskar.

En gärdsgård ramar in hela tomten. Vid infarten grindstolpar och körgrind. På tomten finns flera utebelysningar som styrs med astrofunktion och timer.
Summa driftkostnad: 58 313 kr/år. Driftkostnaden fördelas enligt följande:
El: 40 099 kr
V/A: 9 343 kr
Sotning: 350 kr
Renhållning: 2 685 kr
Försäkring: 5 536 kr
Övrigt: 300 kr
I kostnaden för el ingår hushållsel samt uppvärmning av såväl bostadshus som garage. Sotning vart 3:e år. Övriga kostnader är Byföreningen. Tillkommer kostnad för fastighetsskatt, samfällighetsförening (bildad 2025), ev. TV/bredband, ev. larm, brandskyddskontroll (vart 6:e år) samt underhållskostnader. Notera att driftkostnaderna är ägarens faktiska kostnader för två personer vilka givetvis varierar beroende på familjestorlek och förbrukning.
220, Småhusenhet, bebyggd
Taxeringsvärdet är 6 420 000 kr varav byggnadsvärde 5 000 000 kr, mark 1 420 000 kr. Värdeår: 2000.
7 st om totalt 4 500 000 kr.

Entréplan (takhöjd 2,4 m)
Välkomnande och ljus huvudentré via en vacker glasveranda som ansluter till en öppen möblerbar hall med garderober och klädavhängning. I direkt anslutning till hallen finns ett rymligt vardagsrum med öppen spis med insats. Stora höga fönster i burspråksform ger känsla av ”salong” med vacker utsikt ner över trädgården och över grannhusen ut över Siljan. Vardagsrummet är öppet mot köket och ligger i fil med ett mindre sovrum, vilket skapar ett fint ljusflöde genom huset.

Det påkostade och rymliga köket får mycket ljus genom flera fönster och en fönsterdörr. Dörren leder till en altan med utsikt över Siljan och morgon- och kvällssol på sommaren. Köket är inrett med ett kvalitetskök från Ballingslöv. Det har praktisk lådförvaring i samtliga bänkskåp, flera vitrinskåp samt bänkskivor i massiv ek. Köksutrustningen består av en rejäl diskbänk, glaskeramikspis, fläkt, kyl, frys, diskmaskin och vedeldad köksspis.

Tvättstuga och ett mindre sovrum/gästrum (som delades av från vardagsrummet 2018) kan nås via huvudentrén eller via en separat entré på gaveln. Gäster kan därmed få egen avskildhet och ingång. I anslutning till tvättstugan finns ett helkaklat duschrum/toalett och tvättställskommod. Klädavhängning till höger och klädkammare vid gavelingången. I tvättstugan finns centraldammsugaren, TT, TM, TS, arbetsbänk, diskbänk och skåpinredning inklusive ett städskåp. Vidare finns inbyggda teknikrum med vatten, bergvärmepump, golvvärmefördelare och el-central. I tvättstugan finns även ett frikyleaggregat kopplat till bergvärmen som bidrar till energisnål svalka heta sommardagar.

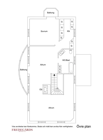
Övre plan (takhöjd drygt 2,7 m).
Via en svängd trapp nås det övre allrummet som är byggt i vinkel med fönster i flera väderstreck. Här har man panoramautsikt över Siljan, Rättviks kyrka samt Vikarbyn på andra sidan sjön. Allrummet kan ge plats åt såväl soffhörna med TV (anslutning till parabol finns) som matplats mm. Mitt i rummet finns en stor murad öppen spis. Rummet har en långsmal balkong i norrläge med plats för ett litet bord och ett par stolar. Här kan man verkligen njuta av midsommarkvällens solnedgång.

Allrummet är projekterat att (om inte en köpare begär annat) på säljarens bekostnad delas av i ett sovrum med utsikt mot Holens gammelgård ett par hundra meter bort. Realisation kan ske före tillträde. Det avdelade rummet rymmer skjutdörrsgarderober och plats för dubbelsäng och arbetsplats. Se planritning. En mer utförlig skiss finns också under rubriken "Dokument & länkar”.

Från allrummet når man ett befintligt stort sovrum med strålande utsikt och en balkong i öster. I detta sovrum finns marksänd TV. I direkt anslutning finns en rymlig klädkammare med flertalet garderober och strax intill ett större helkaklat badrum. Det är utrustat med bubbelbadkar, wc samt kommod med tvättställ och spegelskåp. Tre vägghängda högskåp ger gott om förvaring. Bakom en lucka i badrummets vägg finns golvvärmefördelaren för övervåningen.

Ytskikt och materialval:
Golv - Vitvaxat och hårdvaxoljat furugolv (4 mm slitskikt) i veranda, hall och kök. Mattlackad enstavsparkett (4 mm slitskikt) i borstad kvistfri ek på golv i vardagsrum samt gästrum på nedre plan samt i allrum på övre plan (Tarkett Shade Ek Essence XT plank). I sovrum och klädkammare på övre plan är motsvarande ekgolv (3,5 mm slitskikt) vitlaserat och mattlackat (Tarkett Shade Ek cotton White XT plank).
Väggar/tak - I verandan vitmålad pärlspont i tak, i övrigt gipsskivor i tak, i salongen på nedervåningen med dekorfris. Genomgående ett ljust och sobert färgval i vitt, beige, grått samt en blommig designtapet som fond i sovrummet.

Kök - Vitt Ballingslövs kök (lucka Star) med vitrinskåp och andra detaljer i serien Tradition. Bänkskivor i massiv enstavs-ek
Tvättstugan - Klinker på golv och kakel över arbetsbänk. Bänkskiva i massiv bok
Duschrum/wc och Badrum - Helkaklat.

Övrigt:
Genomgående vattenburen golvvärme på båda våningsplanen.
I samtliga rum finns inbyggda takhögtalare kopplade till en central B&O-anläggning installerad på övervåningen med CD-spelare och radio. Varje rum har separat styrenhet för val av ljudnivå/radio. Parabol finns med uttag för TV i allrum.
Utebelysningen och en del lampor/uttag inne är grupperade och kopplade till en astrofunktion samt timer. Det är ett omfattande styrsystem som innebär att vissa lampor kan tändas/släckas med solens ned- och uppgång och vid behov kan en del släckas automatiskt vid en vald tidpunkt.
Ett larm är installerat som varnar för såväl intrång som rökutveckling. (Detektorer i flera rum.)
I köket och i sovrum på övre plan finns marksänd TV.
Fiber finns framdraget till tomtgräns.

Renoveringar/löpande underhåll:
2017 - Energideklaration, 56 kWh/kvm/år. Energiklass B, genomförd av tidigare ägare. (Not: Sedan energideklarationen gjordes har elförbrukningen reducerats en hel del)

2018-2023
Helt ny trädgårdsanläggning med stenlagda gångar, pallkragar, träd, (två nya äppelträd), buskar och rabatter.
Flera insatser för bättre värmeekonomi som genom punktisolering och en mer effektiv bergvärmepump.

2018
Ombyggnad med extra rum/sovrum på entréplan och uppsättning av duschvägg på gästtoaletten. Ombyggnad av tvättstuga med stor diskbänk och installation av torkskåp.
Tillbyggnad av köksaltan och byte till impregnerat virke i alla balkonger/utetrappor.
Installation av garageskjutportar. Inredning av garage med hyllor, tvättbänk och vattenutkastare för bevattning.
Taktvätt (avdödning alger mm) av hus och garage.

2019
Nytt kök inklusive förbättrat fuktskydd samt ny diskmaskin, kyl, frys och spisfläkt. (DM från Siemens, Fläkt från Franke, Kyl/frys från Husqvarna)
Byggnation av handtimrad vedbod. Ny gärdesgård med gånggrindar. Installation av braskaminkassett.
Viss golvutjämning (fiberförstärkt flytspackel) på ovanvåningen med läggning av nya klickgolv samt slipning av furugolv i hall/kök. Uppsättning av snörasskydd.
Anläggning av gårdssingel på uppfarten med stenlagd kant.
Ny flaggstång. Brandskyddskontroll utförd.

2020 - Ny ventilationsfläkt (frånluft). Punktinsatser för bättre dränering och vattenskydd utomhus ex. stenkista, överbleck på fönster.

2021
Nya badrumsmöbler och installation av bubbelbadkar.
Ny bergvärmepump (Thermia Calibra Eco 12 kW) inklusive frikyleaggregat och app-övervakning.

2022
Entrétak med dekormålning. Ommålning av hus och fönster. Omkittning av alla fönster och fönsterdörrar med syntetiskt kitt. Nya grindstolpar.

2023 - Utbyte av samtliga lysrörsarmaturer till LED belysning (garage, förråd och tvättstuga). Ommålning av garage. Nya pallkragar. Ny tvättmaskin, ny torktumlare (Bosch) samt installation av vattenfelsbrytare och tryckreduceringsventil. Sotning utförd.

2024 - Förbesiktning, radonmätning och brandskyddskontroll utförd.
2025 - Ny slinglös robotgräsklippare installerades. Skydd mot fågelbon installerades på skorsten.

Fastigheten är belägen i tätorten Tällberg i Leksands kommun i Dalarna och Siljansbygden. Huset ligger högt i byn, i närheten av Holens gammelgård och med gångavstånd till byns alla hotell, spaanläggningar och restauranger.

Tällberg har en fin badstrand i anslutning till campingen, fina vandringsleder och bär- och svampmarker på gångavstånd från bebyggelsen. Bra kommunikationer i Siljansbygden, med buss och tåg från Tällbergs station. För mer information, se under rubriken dokument & länkar i annonsen.

Intresseanmälan

Dina uppgifter förblir konfidentiella och stannar hos oss.